Active
709 S Fillmore Avenue
Kirkwood, MO 63122
4 beds
3 full, 2 half baths
2,500 sqft
$897,500
Details
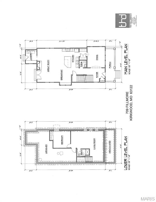
Here's a great opportunity to work with Rombach Homes, the builder of your new home with their custom details from the ground up. This .16 acre lot is being developed with your 2-story home which has 2,500 sf above grade, plus a 700 sf finished lower level with living room, bedroom and full bath along with a detached 2 car garage. Pella black windows, gas fireplace, stainless appliances, commercial gas range and gourmet kitchen with quartz counter tops are just some of the many attributes to this home. The builder is ready for your finishing choices to make this new custom home yours. Conveniently located near The Magic House, schools, shopping and just a walk away from Fillmore Park.
Specs
Type New Home
Style 2 Story
Beds 4
Baths 3 full, 2 half baths
Total Living Area 3,200 sqft
Square Footage 2,500 sqft
Garage Spaces 2
Lot Size 0.42 acres
Year Built 2023
Taxes Paid $772
Lots & Building Features
Architecture Contemporary, Other
Construction Vinyl Siding
Cooling Central Air
Heating Natural Gas, Forced Air
Interior Decor Solid Surface Countertop(s)
Sewer Public Sewer
Tax Year 2024
Taxes Paid $772
Fireplaces 1
Room Details
Basement Description Sleeping Area, Bathroom
Get Directions
Area
City Kirkwood
County St. Louis
School District Kirkwood R-VII
Subdivision South Kirkwood Heights
Schools
Elementary School F. P. Tillman Elem.
Junior High School Nipher Middle
Senior High School Kirkwood Sr. High
